Namas - poilsinė "WOOF 1"

€0,00 / vnt

*Būsite nukreipti į mūsų partnerio tinklapį tolimesniam pirkimui

Trumpas aprašymas

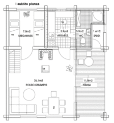
100 kvadratinių metrų, 3 kambarių namas -poilsinė

100 kvadratinių metrų, 3 kambarių namas -poilsinė. Idealus svečių namas šalia jūsų sodybos.
Dėl kainos teirautis 8 (5) 275 18 70

Architektas Rinaldas Regesas

Prisijunkite, kad galėtumėte komentuoti

Verslo skelbimai

Naujausi įmonių verslo skelbimai

ASATV kanalo filmai

Rąstinio namo statyba

Rąstinis namas, kaip statomas rąstinis namas, ar verta statyti rąstinį namą

Specialistas atsako