Namas "TERRY2"

€0,00 / vnt

*Būsite nukreipti į mūsų partnerio tinklapį tolimesniam pirkimui

Trumpas aprašymas

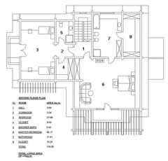
241,22 kv .m. poilsio namas ,skirtas 6 asmenų šeimai.

241,22 kv .m. penkių kambarių poilsio namas su didele pirmo aukšto svetaine ir šeimininkų miegamuoju antrame aukšte, skirtas 6 asmenų šeimai.
Dėl kainų teirautis 8 (5) 275 18 70

Architektas Petras Ubartas

Prisijunkite, kad galėtumėte komentuoti

Verslo skelbimai

Naujausi įmonių verslo skelbimai

ASATV kanalo filmai

Rąstinio namo statyba

Rąstinis namas, kaip statomas rąstinis namas, ar verta statyti rąstinį namą

Specialistas atsako