ARBOR

€0,00 / vnt

*Būsite nukreipti į mūsų partnerio tinklapį tolimesniam pirkimui

Trumpas aprašymas

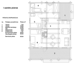
2 aukštų namas, populiariausias vienkieminis variantas. Nuostabiai tinka ant neaukšto lėkšto ežero šlaito.

2 aukštų namas, populiariausias vienkieminis variantas. Nuostabiai tinka ant neaukšto lėkšto ežero šlaito.

Architektas Rinaldas Regesas

[email protected]

Prisijunkite, kad galėtumėte komentuoti

Verslo skelbimai

Naujausi įmonių verslo skelbimai

ASATV kanalo filmai

Rąstinio namo statyba

Rąstinis namas, kaip statomas rąstinis namas, ar verta statyti rąstinį namą

Specialistas atsako