Namas "TERRY1"

€0,00 / vnt

*Būsite nukreipti į mūsų partnerio tinklapį tolimesniam pirkimui

Trumpas aprašymas

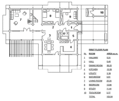
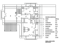
240,12 kv .m. poilsio namas ,skirtas 6 asmenų šeimai.

240,12 kv .m. septynių kambarių erdvus poilsio namas su sporto sale, skirtas 6 asmenų šeimai.
Dėl kainų teirautis 8 (5) 275 18 70

Architektas Petras Ubartas

Prisijunkite, kad galėtumėte komentuoti

Verslo skelbimai

Naujausi įmonių verslo skelbimai

ASATV kanalo filmai

Rąstinio namo statyba

Rąstinis namas, kaip statomas rąstinis namas, ar verta statyti rąstinį namą

Specialistas atsako