GRAND

€0,00 / vnt

*Būsite nukreipti į mūsų partnerio tinklapį tolimesniam pirkimui

Trumpas aprašymas

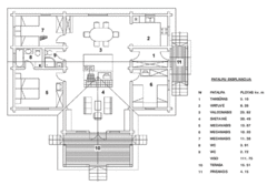
111,75 kv .m. poilsio namas ,skirtas 6 asmenų poilsiui.

111,75 kv .m. poilsio namas ,skirtas 6 asmenų poilsiui.
Dėl kainų teirautis 8 (5) 275 18 70 arba galite užklausimą atsiūsti [email protected] elektroniniu paštu.

Architektas Petras Ubartas

Prisijunkite, kad galėtumėte komentuoti

Verslo skelbimai

Naujausi įmonių verslo skelbimai

ASATV kanalo filmai

Rąstinio namo statyba

Rąstinis namas, kaip statomas rąstinis namas, ar verta statyti rąstinį namą

Specialistas atsako