3 kambarių namas "ERA 2"

€0,00 / vnt

*Būsite nukreipti į mūsų partnerio tinklapį tolimesniam pirkimui

Trumpas aprašymas

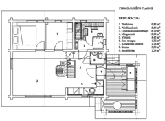
73 kvadratinių metrų, 3 kambarių namas.

73 kvadratinių metrų, 3 kambarių namas.
Dėl kainų teirautis 8 (5) 275 18 70 arba galite užklausimą atsiūsti elektroniniu paštu [email protected].

Architektas Rinaldas Regesas

Prisijunkite, kad galėtumėte komentuoti

Verslo skelbimai

Naujausi įmonių verslo skelbimai

ASATV kanalo filmai

Rąstinio namo statyba

Rąstinis namas, kaip statomas rąstinis namas, ar verta statyti rąstinį namą

Specialistas atsako