ASTRO

€0,00 / vnt

*Būsite nukreipti į mūsų partnerio tinklapį tolimesniam pirkimui

Trumpas aprašymas

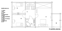
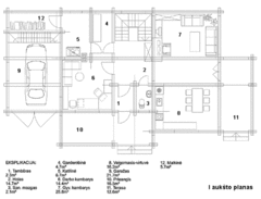
227 kvadratinių metrų, 6 kambarių namas skirtas 4-5 asmenų šeimai.

227 kvadratinių metrų, 6 kambarių namas skirtas 4-5 asmenų šeimai. Tai puikus variantas priemiesčio rajonui, kuris yra arba ribojasi su šviesiu pušynu. Geriausiai tinka lygiam, kraštiniam sklypui.

Architektas Rinaldas Regesas

[email protected]

Prisijunkite, kad galėtumėte komentuoti

Verslo skelbimai

Naujausi įmonių verslo skelbimai

ASATV kanalo filmai

Rąstinio namo statyba

Rąstinis namas, kaip statomas rąstinis namas, ar verta statyti rąstinį namą

Specialistas atsako