Klausimas: Jūsų portale skaičiau straipsnį apie integruotas į sieną arba „nematomas“ duris („Nematomos durys – estetiška, patogu, originalu“). Ar yra galimybė padaryti tokias nematomas duris iš abiejų pusių? Sienos storis – 14 cm.
Atsako Virmantas Baronaitis, UAB „Primus NV” ( e-durys.com) direktorius
Nematomos arba integruotos vidaus durys – tai durys, kurių fasadinė varčia (varstomoji dalis), nesvarbu, ar durys atsidaro į išorę, ar į vidų, nepriklausomai nuo jų varstymo pusės, yra vienoje plokštumoje su siena, matosi tik durų kontūro linija.
Standartinių matmenų nematomos durys montuojamos į gipskartonio ar mūro pertvaras.
Durų komplektą sudaro aliuminio stakta, gruntuota (paruošta dažymui) 40 mm storio varčia, spyna, vyriai ir tarpinė. Varčia gruntuojama ir dažoma vandens pagrindo gruntu ir dažais.

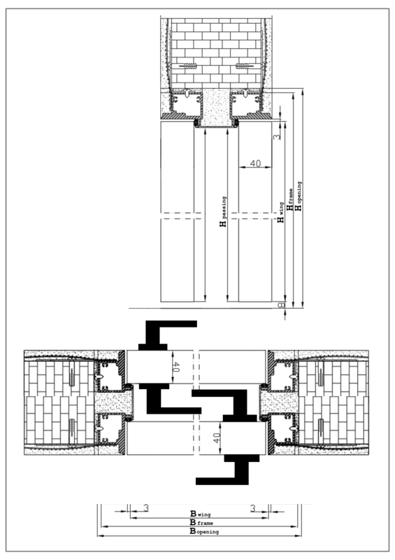
Kaip suprantu, jūs norite, kad durys atrodytų lyg vienoje plokštumoje su siena iš abiejų sienos pusių. Tokiu atveju reikia dėti dvejas duris, kaip pavaizduota žemiau esančiame brėžinyje. Tik noriu perspėti, jog reiktų žinoti, ar dažnai bus naudojamos šios durys. Jei naudosite dažnai, gali būti nepatogu darinėti dvejas duris.
Geriausi temos straipsniai
Aliuminio stiklo konstrukcijos
Konstrukcijos iš aliuminio stiklo profilių, aliuminio stiklo langai, slenkančios sistemos, stiklo profilių fasadai, statybos galimybės iš aliuminio stiklo profilių
Apsauginės buto durys
Geriausios apsauginės durys, šarvuotos durys nuo įsilaužimo, kaip išsirinkti saugias buto duris
Durų akutė
Durų akutės ypatumai
Durų angos montavimas gipskartonio pertvaroje
Durų įrengimas gipskartonio pertvaroje, profiliai durims gipso kartonio pertvaroje, durų profilių montavimas pertvaroje
Durų kontrolės ir valdymo įranga
Durų valdymo elementai
Durų pakeitimas
Ką reikia žinoti nusprendus pakeisti namuose duris
Durų salono verslas
Kaip įkurti ir pelningai vystyti durų salono verslą, didmeninė prekyba durimis
Geriausios lauko durys
Lauko durys, kaip išsirinkti lauko duris, metalinės, kompozito lauko durys, stiklo pluošto durys
Laiptinių durys ir užraktai. Kokie patvariausi?
Reikia keisti laiptinės duris ir/ar užraktą? Kaip juos įvertinti ir išsirinkti? Šie patarimai bus naudingi ir perkantiems naują butą, ir modernizuojantiems daugiabutį
Lauko durų montavimas
Šiltos lauko durys, lauko durų montavimas be šilumos tiltelių, kaip išvengti šilumos tiltelių montuojant lauko duris
Produktas kategorijos apacioje
| Paveikslėlis | Pavadinimas | Trumpas aprašymas | Kaina |
|---|---|---|---|
|
|
Automatinės durys | Slankiojančios Durys, Automatinės Durys, Automatinės Durų Sistemos Vilniuje | €0.00 |
|
|
Baltos vidaus durys Vilniuje | Baltos Spalvos Vidinės Durys Vilnius | €0.00 |
|
|
Durų pritrauktuvai | Durys, Durų Pritraukimas, Durų Pritrauktuvai Vilniuje, Lengvas Durų Pritraukimas | |
|
|
Energiją taupančios langų ir durų technologijos | Lango Izoliacija, Langų Izoliacija, Energija Taupantys Langai, šilumos Izoliacija, Energija Taupantys Langai, Roto Vyriai | |
|
|
Karuselinės durys | Automatinės Karuselinės Durys | €0.00 |
|
|
Katilinės durys Kaune | Ugniai Atsparios Durys | €0.00 |
|
|
Kompozicinės lauko durys | Kompozicinės įėjimo Durys, Kompozicinės Stiklo Pluošto Durys | €0.00 |
|
|
Lauko durys Vilniuje | įėjimo Durys Namui Vilnius, Prekyba Lauko Durimis Vilnius | €0.00 |
|
|
Lauko durys namui Kaune | Lauko Durys Namui, Lauko Durys Gamyba, šiltos Lauko Durys, Plieninės Lauko Durys, Saugios Lauko Durys, Lauko Durys Su Stiklu, Lauko Durys Kaune, Lauko Durys Namui Kaunas | €0.00 |
|
|
Metalinės laiptinės durys Kaune | Laiptines Durys Kokias Rinktis | €0.00 |
|
|
Modulinė apkaustų sistema | Modulinė Apkaustų Sistema, Langų Ir Durų Apkaustų Sistema, Saugūs Ir Patogūs Langų Apkaustai, Atidaromųjų Atverčiamųjų Langų Ir Durų Apkaustų Sistema | |
|
|
Montavimo putos langams ir durims SOUDAFOAM GUN MAXI | Montavimo Putos Skirtos Langų Ir Durų Montavimui, Ertmių Užpildymui | €0.00 |
|
|
Pilnai automatinė stumdomų durų sistema | €0.00 | |
|
|
Priešgaisrinės durys Kaunas | Priešgaisrinės Durys Katilinei Kaunas, Priešgaisrinės Aliuminio Durys, Priešgaisrinių Durų Gamyba, Priešgaisrinės Lauko Durys, Priešgaisrinės Durys Reikalavimai, Priešgaisrinės Durys Kaina | €0.00 |
|
|
Priešgaisrinės durys | €0.00 | |
|
|
Priešgaisrinės katilinės durys Vilnius | Priešgaisrinės Durys Vilnius | €0.00 |
|
|
Sistema be barjerų slenksčiams GU-thermostep 164 ir GU-thermostep-204, NAUJIENA. | Durų Slenksčio Išlyginimas Viename Lygyje Su Terasa | €0.00 |
|
|
Slankiojančios durys | Slankiojančios Automatinės Durys | €0.00 |
|
|
Stumdomų durų sistema | Stumdomų Durų Sistema, Stumdomos Durys, Durų Sistema, Aliuminės Stumdomos Durys, Aliuminė Durų Sistema | |
|
|
Vidaus durys Vilniuje | Vidinės Durys Vilnius, Medinės Durys Vilniuje, Ekofaneruotės Durys Vilnius | €0.00 |
|
|
Šarvo durys butui Kaunas | Kokybiškos šarvo Durys Kaune, šarvuotos Durys Kaunas, šarvo Durys Butui Kaunas, šarvuotos Durys Butui, šarvuotos Durys Su Garso Izoliacija, šarvo Durys Gamyba Kaune | €0.00 |
|
|
Šarvuotos lauko durys Kaune | šarvuotos Lauko Durys Kaune, šarvuotos Durys Namui Kaune, šarvo Durys Kaunas, šarvo Durys Namui, šarvuotos Lauko Durys, šarvuotos Durys Su Stiklu, šarvuotos įėjimo Durys Kaunas | €0.00 |
Prekės ir paslaugos
Naujausi įmonių verslo skelbimai
Straipsniai
Instrukciniai straipsniai abėcėlės tvarka
ASATV kanalo filmai
Lauko durų montavimo filmas
Lauko durų montavimo filmas instrukcija, kaip teisingai montuoti ir sandarinti duris
Kaip išsirinkti šarvuotas duris
Kaip išlaužiamos apsauginės šarvuotos durys, kaip pasirinkti patikimas duris
Šarvuotų durų sumontavimas
Kaip taisyklingai sumontuoti šarvo duris
