Namo projektas BRIGAS
Įmonė: JUNGTINIŲ PAJĖGŲ NAMAI, UAB
Pylimo g. 58
+370-620-59244
http://www.jpnamai.lt
€0,00
*Būsite nukreipti į mūsų partnerio tinklapį tolimesniam pirkimui
Trumpas aprašymas
221,3 m² individualaus dviejų aukštų namo projektas
Namo projektas BRIGAS
- Gyvenamasis plotas 126,0 m2
- + garažas 36,0 m2
- + terasos 37,6 m2
- Bendrasis plotas 221,3 m2
- Užstatytas plotas 213,8 m2
- Ilgis 19,7 m
- Plotis 12,3 m

I AUKŠTAS

1. Tambūras 2,6 m2
2. Holas 5,4 m2
3. WC 3,6 m2
4. Tambūras 2 m2
5. Katilinė 5,1 m2
6. Gyvenamasis kambarys 39,3 m2
7. Virtuvė 13 m2
8. Valgomasis 12,2 m2
9. Vaiko kambarys 15,1 m2
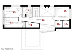
II AUKŠTAS

10. Holas 18,9 m2
11. Sandėliukas 5,6 m2
12. Vaiko kambarys 15,5 m2
13. Vaiko kambarys 15 m2
14. Vonia / WC 8 m2
15. Tėvų kambarys 16 m2
16. Drabužinė 4 m2
17. Drabužinė 4 m2
Projekto kaina 4900 Lt. (architektūrinė ir konstrukcinė dalis)
JUNGTINIŲ PAJĖGŲ NAMAI, UAB
Straipsniai
Instrukciniai straipsniai abėcėlės tvarka