Rąstinis namas - RAMYBĖ

Įmonė: ASA HOUSES

Vytenio 50

€89 776,00 €83 984,00

*Būsite nukreipti į mūsų partnerio tinklapį tolimesniam pirkimui

Trumpas aprašymas

Mediniai ir rąstiniai namai, rąstinių namų statyba



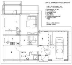
Šiuolaikiškai, praktiškai šeimai skirtas dviejų aukštų rąstinis gyvenamasis namas su terasa ir garažu. Idealiai užpildytų sklypą, esantį mieste arba šalia miško. Bendrasis plotas - 158.2 kv.m., gyvenamasis plotas - 83.4 kv.m., patalpos suskirstytos į 5 kambarius, pirmame aukšte įrengtos erdvios, aktyviai veiklai ar poilsiui skirtos patalpos, mansardiniame aukšte - erdvūs miegamieji kambariai. Dėl kainų ar išsamesnės informacijos apie projektą galite teirautis arba siųsti užklausą žemiau nurodytais tel.nr. arba el. paštu.

ASA HOUSES

Rąstinis sodo namas - POILSIS

Rąstiniai namai, nedidelis rąstinis namas

Rąstinis namas - DVARELIS

Erdvus rąstinis namas

Rąstiniai namai - SAKALAS

Namai iš rąstų, sodyba iš rąstų

Rąstinis namas - DZŪKAS

Rąstinių namų projektai, rąstiniai namai

Rąstinis namas - PAVASARIS

Rąstiniai namai, nedideli rąstiniai namai, rąstinių namų projektai

Prisijunkite, kad galėtumėte komentuoti

Verslo skelbimai

Naujausi įmonių verslo skelbimai

ASATV kanalo filmai

Rąstinio namo statyba

Rąstinis namas, kaip statomas rąstinis namas, ar verta statyti rąstinį namą

Specialistas atsako