Rąstinis namas - ŽIDINYS

Įmonė: ASA HOUSES

Vytenio 50

€81 088,00 €66 608,00

*Būsite nukreipti į mūsų partnerio tinklapį tolimesniam pirkimui

Trumpas aprašymas

Mediniai rąstinia namai, pjautų rąstų namas



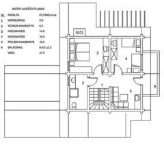
Jaukumą vertinančiai, negausiai šeimai skirtas ekonomiškas, nedidelis, dviejų aukštų rąstinis gyvenamasis namas su terasa, balkonu bei pastoge automobilui. Puikiai užpildytų sklypą, esantį mieste arba šalia miško. Bendrasis plotas - 125.8 kv.m., gyvenamasis plotas - 60.0 kv.m., patalpos suskirstytos į 5 kambarius, pirmame aukšte įrengtos aktyviai veiklai ar poilsiui skirtos patalpos - holas, svetainė ir virtuvė - valgomasis, mansardiniame aukšte - komfortiški 2 miegamieji kambariai bei poilsio erdvė. Dėl kainų ar išsamesnės informacijos apie projektą galite teirautis arba siųsti užklausą žemiau nurodytais tel.nr. arba el. paštu.

ASA HOUSES

Rąstinis sodo namas - POILSIS

Rąstiniai namai, nedidelis rąstinis namas

Rąstinis namas - DVARELIS

Erdvus rąstinis namas

Rąstiniai namai - SAKALAS

Namai iš rąstų, sodyba iš rąstų

Rąstinis namas - DZŪKAS

Rąstinių namų projektai, rąstiniai namai

Rąstinis namas - PAVASARIS

Rąstiniai namai, nedideli rąstiniai namai, rąstinių namų projektai

Prisijunkite, kad galėtumėte komentuoti

Verslo skelbimai

Naujausi įmonių verslo skelbimai

ASATV kanalo filmai

Rąstinio namo statyba

Rąstinis namas, kaip statomas rąstinis namas, ar verta statyti rąstinį namą

Specialistas atsako