Rąstinis namas - DECORUS

Įmonė: ASA HOUSES

Vytenio 50

€173 760,00 €147 696,00

*Būsite nukreipti į mūsų partnerio tinklapį tolimesniam pirkimui

Trumpas aprašymas

Rąstiniai namai, rąstinių namų statyba



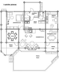
Prestižą vertinančiai, gausiai šeimai skirtas dviaukštis erdvus rąstinis gyvenamasis namas su plačiomis, nestandartinių formų terasomis. Bendrasis plotas - 278.0 kv.m., gyvenamasis plotas - 172.4 kv.m., patalpos suskirstytos į 5 kambarius, pirmame aukšte įrengtos aktyviai veiklai ar poilsiui skirtos įspūdingo ploto terasos, mansardiniame aukšte - neįprastai erdvi vonios patalpa bei balkonas, suteikiantis galimybę mėgautis panoraminiais vaizdais. Architektas Rinaldas Regesas Dėl kainų ar išsamesnės informacijos apie projektą galite teirautis arba siųsti užklausą žemiau nurodytais tel.nr.  +370 674 53341  +370 674 53341 arba el. paštu.
[email protected]

ASA HOUSES

Rąstinis sodo namas - POILSIS

Rąstiniai namai, nedidelis rąstinis namas

Rąstinis namas - DVARELIS

Erdvus rąstinis namas

Rąstiniai namai - SAKALAS

Namai iš rąstų, sodyba iš rąstų

Rąstinis namas - DZŪKAS

Rąstinių namų projektai, rąstiniai namai

Rąstinis namas - PAVASARIS

Rąstiniai namai, nedideli rąstiniai namai, rąstinių namų projektai

Prisijunkite, kad galėtumėte komentuoti

ASATV kanalo filmai

Rąstinio namo statyba

Rąstinis namas, kaip statomas rąstinis namas, ar verta statyti rąstinį namą

Kaip pasirinkti blokelius?

Visų statybinių blokelių apžvalga kuri padaryta kartu su Blokelių Centras vadovu