Didelis rąstinis namas - DVARAS

Įmonė: ASA HOUSES

Vytenio 50

€260 640,00 €211 408,00

*Būsite nukreipti į mūsų partnerio tinklapį tolimesniam pirkimui

Trumpas aprašymas

Rąstinių namų statyba, skandinaviško sukirtimo arba mechaniškai apdirbtų rąstų namas



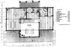
Didelis, prabangus, dviaukštis rąstinis gyvenamasis namas su plačia terasa bei rūsiu, ideliai pritaikytas užpildyti šlaitinį skypą. Puikiai tinkantis įsikurti gausiai šeimai, vertinančiai erdvę bei komfortą. Bendrasis plotas - 402.0 kv.m., gyvenamasis plotas - 204.0 kv.m., patalpos suskirstytos į 7 kambarius, rūsyje įrengta garinė, o mansardiniame aukšte esantis balkonas suteikia galimybę mėgautis panoraminiais vaizdais. Dėl kainų ar išsamesnės informacijos apie projektą galite teirautis arba siųsti užklausą žemiau nurodytais tel.nr. arba el. paštu.

ASA HOUSES

Rąstinis sodo namas - POILSIS

Rąstiniai namai, nedidelis rąstinis namas

Rąstinis namas - DVARELIS

Erdvus rąstinis namas

Rąstiniai namai - SAKALAS

Namai iš rąstų, sodyba iš rąstų

Rąstinis namas - DZŪKAS

Rąstinių namų projektai, rąstiniai namai

Rąstinis namas - PAVASARIS

Rąstiniai namai, nedideli rąstiniai namai, rąstinių namų projektai

Prisijunkite, kad galėtumėte komentuoti

ASATV kanalo filmai

Rąstinio namo statyba

Rąstinis namas, kaip statomas rąstinis namas, ar verta statyti rąstinį namą

Kaip pasirinkti blokelius?

Visų statybinių blokelių apžvalga kuri padaryta kartu su Blokelių Centras vadovu