Rąstinis namas - AUKŠTAITIS

Įmonė: ASA HOUSES

Vytenio 50

€52 128,00

*Būsite nukreipti į mūsų partnerio tinklapį tolimesniam pirkimui

Trumpas aprašymas

Kaimiško tipo rąstinis namas



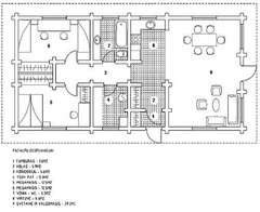
Dviejų galų, kaimiško stiliaus, šeimos poilsiui skirtas vienaukštis rąstinis gyvenamasis namas. Idealiai užpildytų sklypą Aukštaitijos regione arba puikiai tiktų plėtojant kaimo turizmo projektus. Bendrasis plotas - 83.3 kv.m., gyvenamasis plotas - 78.0 kv.m., patalpos suskirstytos į 2 miegamuosius kambarius bei erdvią svetainės - valgomojo patalpą. Dėl kainų ar išsamesnės informacijos apie projektą galite teirautis arba siųsti užklausą žemiau nurodytais tel.nr. arba el. paštu.

ASA HOUSES

Rąstinis sodo namas - POILSIS

Rąstiniai namai, nedidelis rąstinis namas

Rąstinis namas - DVARELIS

Erdvus rąstinis namas

Rąstiniai namai - SAKALAS

Namai iš rąstų, sodyba iš rąstų

Rąstinis namas - DZŪKAS

Rąstinių namų projektai, rąstiniai namai

Rąstinis namas - PAVASARIS

Rąstiniai namai, nedideli rąstiniai namai, rąstinių namų projektai

Prisijunkite, kad galėtumėte komentuoti

Verslo skelbimai

Naujausi įmonių verslo skelbimai

ASATV kanalo filmai

Rąstinio namo statyba

Rąstinis namas, kaip statomas rąstinis namas, ar verta statyti rąstinį namą

Specialistas atsako