Rąstinis namas - RYTAI

Įmonė: ASA HOUSES

Vytenio 50

€150 592,00 €130 320,00

*Būsite nukreipti į mūsų partnerio tinklapį tolimesniam pirkimui

Trumpas aprašymas

Dviaukštis rąstinis namas



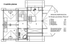
Prestižinis, dviaukštis rąstinis gyvenamasis namas, gausiai šeimai, su nestandartines formos terasa ir prieangiu. Nuostabiai tinka individualių sklypų kvartalui. Bendrasis plotas - 233.4 kv.m., gyvenamasis plotas - 182.1 kv.m., patalpos suskirstytos į 6 kambarius, pirmajame aukšte įrengtas erdvus valgomasis, iš kurio atsveria panoraminis vaizdas į išorę, o mansardiniame aukšte įrengti 2 kambariai ir 34.0 kv.m. miegamosios patalpos. Dėl kainų ar išsamesnės informacijos apie projektą galite teirautis arba siųsti užklausą žemiau nurodytais tel.nr. arba el. paštu.

ASA HOUSES

Rąstinis sodo namas - POILSIS

Rąstiniai namai, nedidelis rąstinis namas

Rąstinis namas - DVARELIS

Erdvus rąstinis namas

Rąstiniai namai - SAKALAS

Namai iš rąstų, sodyba iš rąstų

Rąstinis namas - DZŪKAS

Rąstinių namų projektai, rąstiniai namai

Rąstinis namas - PAVASARIS

Rąstiniai namai, nedideli rąstiniai namai, rąstinių namų projektai

Prisijunkite, kad galėtumėte komentuoti

ASATV kanalo filmai

Rąstinio namo statyba

Rąstinis namas, kaip statomas rąstinis namas, ar verta statyti rąstinį namą

Kaip pasirinkti blokelius?

Visų statybinių blokelių apžvalga kuri padaryta kartu su Blokelių Centras vadovu