Individualaus gyvenamojo namo projektas VILKOKŠNIS
Įmonė: TAVO PROJEKTAS, UAB
Konstitucijos pr. 23
+370-685-41094
[email protected]
//www.tavoprojektas.lt
*Būsite nukreipti į mūsų partnerio tinklapį tolimesniam pirkimui
Trumpas aprašymas
VILKOKŠNIS
PR.NR. TP-026

Gyvenamas plotas 185 m2
Bendras plotas 333 m2
Užstatymo plotas 305 m2
Terasos 29 m2
Balkonas 34 m2
Ilgis 27,00 m
Plotis 15,50 m
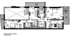
PIRMAS AUKŠTAS
1. Holas 24 m2
2. Virtuvė 15,5 m2
3. Rūbinė 2 m,
4. Darbo k. 18,5 m2
5. Valgomasis 16 m2
6. Svetainė 45 m2
7. Priešpirtis 23 m2
8. Pirtis 7 m2
9. Koridorius 6,5 m2
10. Dušas 2,5 m2
11. San.mazgas 2,5 m2
12. Katilinė 6 m2
13. Garažas 37 m2
14. Terasos
ANTRAS AUKŠTAS
1. Holas 15,5m2
2. Tėvų mieg. 29,5 m2
3. Vonia 9,5 m2
4. Vonia 7 m2
5. Vaiko k. 24 m2
6. Koridorius 3 m2
7. Drabužinė 6 m2
8. Biblioteka 21 m2
9. Koridorius 5 m2
10. Drabužinė 7 m2
11. Balkonai
PROJEKTO KAINA SUTARTINĖ
(Architektūrinė ir konstruktyvinė dalys)
Architektas Remigijus Jutelis
UAB „TAVO PROJEKTAS"
Svetainė: www.tavoprojektas.lt
mob.: +370 685 41094
e.paštas: [email protected]
Straipsniai
Instrukciniai straipsniai abėcėlės tvarka