Individualaus gyvenamojo namo projektas TUOPA-2
Įmonė: TAVO PROJEKTAS, UAB
Konstitucijos pr. 23
+370-685-41094
[email protected]
//www.tavoprojektas.lt
*Būsite nukreipti į mūsų partnerio tinklapį tolimesniam pirkimui
Trumpas aprašymas
TUOPA-2
PR.NR. TP-006

Gyvenamas plotas 190 m2
Bendras plotas 290 m2
Užstatymo plotas 270 m2
Namo aukštis 6,80 m
Terasa 37 m2
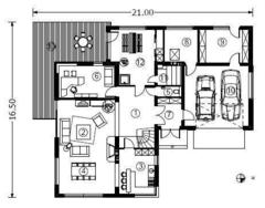
Ilgis 16,50 m
Plotis 21,00 m
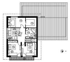
PIRMAS AUKŠTAS
1. Holas 18m2
2. Svetainė 29 m2
3. Virtuvė 15 m2
4. Valgomasis 16 m2
5. San.mazgas 2 m2
6. Darbo k. 16 m2
7. Tambūras 6 m2
8. Katilinė 10 m2
9. Sandėlis 15 m2
10. Garažas 34 m2
11. Sauna 4 m2
12. Poilsio pat. - skalbykla 22 m2
13. Terasa 37 m2
ANTRAS AUKŠTAS
14. Holas 23 m2
15. Tėvų k. 17 m2
16. Vaiko k. 19 m2
17. Vaiko k. 19 m2
18. Vonia 11 m2
19. Rūbinė 11 m2
20. Balkonas 7 m2
PROJEKTO KAINA SUTARTINĖ
(Architektūrinė ir konstruktyvinė dalys)
Architektas Remigijus Jutelis
UAB „TAVO PROJEKTAS"
Svetainė: www.tavoprojektas.lt
mob.: +370 685 41094
e.paštas: [email protected]
Straipsniai
Instrukciniai straipsniai abėcėlės tvarka