Individualaus gyvenamojo namo projektas LUKNIS
Įmonė: TAVO PROJEKTAS, UAB
Konstitucijos pr. 23
+370-685-41094
[email protected]
//www.tavoprojektas.lt
*Būsite nukreipti į mūsų partnerio tinklapį tolimesniam pirkimui
Trumpas aprašymas
LUKNIS
PR.NR. TP-028

Gyvenamas plotas 109 m2
Bendras plotas 218 m2
Užstatymo plotas 200 m2
Terasa 6,5 m2
Balkonas ---
Ilgis 22,50 m
Plotis 11,00 m
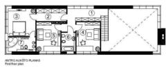
PIRMAS AUKŠTAS
1. Holas 17 m2
2. Darbo k. 13 m2
3. San.mazgas 4 m2
4. Sandėliukas 4 m2
5. Virtuvė 9 m2
6. Valgomasis 9,5 m2
7. Svetainė 44 m2
8. Sandėliukas 4 m2
9. Katilinė 7,5 m2
10. Garažas 32 m2
ANTRAS AUKŠTAS
1. Holas 11 m2
2. Garderobinė 7,5 m2
3. Tėvų mieg. 15 m2
4. Vaiko k. 14 m2
5. Vaiko k. 13,5 m2
6. Vonia 5,5 m2
7. Vonia 7,5 m2
PROJEKTO KAINA SUTARTINĖ
(Architektūrinė ir konstruktyvinė dalys)
Architektas Remigijus Jutelis
UAB „TAVO PROJEKTAS"
Svetainė: www.tavoprojektas.lt
mob.: +370 685 41094
e.paštas: [email protected]
Straipsniai
Instrukciniai straipsniai abėcėlės tvarka