APDAILOS JUVELYRAI
Adresas
Miestas
Vilnius
Telefonai
+370-600 78785
El. paštas
Įmonės svetainės
Elektros darbai Vilniuje - atliekame išorės ir vidaus elektros projektavimo, įrengimo, pajungimo darbus. Didelė patirtis ir individualių sprendimų kūrimas yra mūsų stipriosios pusės.

Elektros instaliacija Vilnius - elektros instaliacijos projektavimas, montavimas naujame name. ("Apdailos juvelyrai" nuotrauka.)
Elektros darbai Vilniuje:
Naujų elektros įvadų įrengimas Vilnius
Senų elektros įvadų renovacija, remontas Vilniuje
Elektros instaliacija bute, name Vilnius
Senos elektros instaliacijos keitimas Vilnius
Priešgaisrinės ir apsaugos signalizijų montavimas Vilniuje
Vaizdo stebėjimų sistemų montavimas Vilnius
Apšvietimo sistemų projektavimas, montavimas Vilniuje
Elektros įžemino darbai Vilnius
Elektros instaliacijos darbai Vilnius. Įrengiame elektros instaiaciją naujuose butuose ir namuose, bei atliekame senos elektros instaliacijos keitimą ar atnaujinimą - "Apdailos juvelyrai"
Elektros instaliacijos projektavimas ir montavimas tai vienas svarbiausių namo įrengimo etapų. Apgalvotas elektros instaliacijos planas, leis patogiai valdyti apšvietimą ir išmanias namo sistemas, bei be trukdžių naudotis būste esančiais elektros prietaisais. Teisingai atlikti elektros instaliacijos darbai, garantuos saugumą ir sklandų elektros įrenginių veikimą tiek visame būste, tiek specialiose zonose, kaip vonios kambarys, kur yra nustatytos griežtos elektros instaliacijos įrengimo taisyklės, ar virtuvėje, kur naudojama daug buitinių prietaisų ir atsiranda didelis elektros poreiks vienu metu, todėl yra svarbu teisingai apskaičiuoti elektros apkrovas.

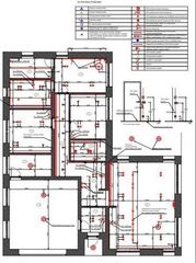
Elektros instaliacijos plano dalis - apšvietimo planas (vieno aukšto, 160m2 ploto privataus namo).
Elektros instaliacijos planą dažniausiai rengia interjero dizaineris, tačiau turime ir užsakovų, kurie jo neturi, tokiu atveju mūsų profesionalūs meistrai atsižvelgiant į užsakovo norus, numato elektros poreikį konkrečiose namo zonose, pagal tai paruošia elektros instaliacijos įrengimo planą ir atlieka visus elektros montavimo darbus. Jei elektros instaliacijos projektas yra paruoštas dizainerio, prieš imantis elektros montavimo darbų jį peržvelgiame ir įvertiname, ar numatyti sprendimai yra įgyvendinami techniškai ir atitinka elektors instaliacijos įrengimo taisykles. Ilgametė praktika šioje srityje, dažnai leidžia pasiūlyti sprendimus, kurie suteikia papildomų patogumų.

"Apdailos juvelyrai" - elektros projektavimas, montavimas Vilniuje.
Mums itin svarbu aukšta darbų kokybė, todėl komandoje dirba tik kvalifikuoti, savo srities profesionalai, meistrai. Darbai atliekami laikantis "Elektros linijų ir instaliacijos įrengimo" taisyklių, visa tai garantuoja, kad elektros sistema veiks sklandžiai ir saugiai. Mūsų klientų atsiliepimus galite perskaityti paspaudus šią nuorodą. Atliktiems darbams suteikiame garantijas. Bendradarbiaujame su elektros prekių pardavėjais, reikalingas medžiagas į objektą tiekiame patys.
Elektros instaliacija name Vilnius, "Apdailos juvelyrai" nuotrauka.
Elektros instaliacija kaina
Elektros instaliacijos darbų kaina, susideda iš dviejų dedamųjų, tai yra elektros instaliacijos montavimo darbų kainos ir elektros instaliacijos prekių kainos. Pastaroji kaina gali svyruoti nemaža amplitude. Pavydžiui elektros jungiklio kainos rinkoje svyruoja nuo kelių eurų ir gali perkopti 100eur. Jei norėsite ilgai tarnaujančių, modernaus dizaino ar išskirtinių spalvų jungiklių - už juos teks sumokėti brangiau. Jungikliai, rozetės, led apšvietimo bėgeliai ir išmanios valdymo sistemos, įprastai sudaro didžiają dalį elektros prekių sąmatos. Elektros instaliacijos montavimo darbų kainą skaičiuojame , pagal įrengtų elektros taškų skaičių. Pavyzdžiui vidutiniame apie 50m² bute, įprastai įrengiame apie 50 - 60 elektros taškų, preliminariai tai kanuoja apie 700 - 900Eur. Tuo tarpu name, elektros taškų poreikis gerokai išauga dėl didesnės būsto kvadratūros ir papildomų, tokių kaip apsaugos, priešgaisrinės saugos, išmanaus namo valdymo sistemų montavimo. Pavyzdžiui pastarąjame 140m² ploto name, irengiant elektros instaliaciją sumontavome apie 200 elektros taškų.
Elektros instaliacija bute Vilnius, ("Apdailos Juvelyrai" nuotrauka). Atliekame ir senos elektros instaliacijos keitimo, atnaujinimo darbus.
Taip pat atliekame ir kitus vidaus apdailos darbus: gipso kartono montavimas; sienų tinkavimas, dažymas; grindų įrengimas, klojimas; plytelių klijavimas; santechnikos įrengimas; vėdinimo sistemų irengimas ir kt.
Susisiekime:
Mob: +370 600 78785
El. paštas: info@apdailosjuvelyrai.lt

Prekės ir paslaugos
Naujausi įmonių verslo skelbimai
Straipsniai
Instrukciniai straipsniai abėcėlės tvarka
ASATV kanalo filmai
Rozetės montavimas
Rozetės pajungimas, jungiklio keitimas, rozečių ir jungiklių dizainas
Elektros instaliacijos montavimas
Elektros instaliacijos montavimo taisyklės, zonos, kodėl skiriasi kabelių kaina, laidų jungimas, rozečių ir jungiklių pajungimas, namo automatizacija